Estate

La casa è circondata da circa 1000 m.di prato. Si trova in posizione tranquilla e comoda al centro.Dispone di parcheggio privato e garage. Dista circa 150 m.dalla fermata dello skibus.
Inverno

Piano terra di mq.45
PT
45
1
2/4
1
Servizi in appartamento
Asciugacapelli, Aspirapolvere, Cucina (chiusa), Ferro da stiro, Forno a microonde, Internet WI-FI, Lavastoviglie, Lavatrice, Sedie sdraio private, Smart TV, Soggiorno, TV, TV SAT
Cod. Identificativo Nazionale (CIN)
IT022118C2JBJMFF9F

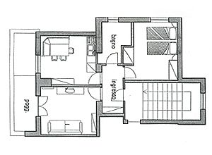
Appartamento "Tipo 1" di 45 mq al pianterreno co- stituito da camera matrimoniale,soggiorno,cucina con angolo pranzo,ingresso e bagno. nella foto: il soggiorno con divano letto



Appartamento al pianterreno: camera da letto matrimoniale


Piantina dell'appartamento "tipo 1" di 45 mq.al pianterreno
Mansarda di mq.40
3
40
1
2/3
1
Servizi in appartamento
Asciugacapelli, Aspirapolvere, Balcone, Cucina (chiusa), Ferro da stiro, Forno a microonde, Internet WI-FI, Lavastoviglie, Lavatrice, Sedie sdraio private, Smart TV, Soggiorno, TV, TV SAT
Cod. Identificativo Nazionale (CIN)
IT022118C23EDK3U2W

Appartamento tipo 2 40 mq. al 2°piano: il soggiorno con 1 letto e angolo pranzo

Appartamento "tipo 2 " 40 mq al 2° piano: cucina.

Appartamento tipo 2 40 mq. al 2° piano: la camera da letto con balcone



Piantina appartamento "tipo 2" di 40 mq.al 2°piano
Mansarda di mq.50
3
50
1
2/4
1
Servizi in appartamento
Asciugacapelli, Aspirapolvere, Balcone, Cucina (chiusa), Ferro da stiro, Forno a microonde, Internet WI-FI, Lavastoviglie, Lavatrice, Sedie sdraio private, Smart TV, Soggiorno, TV, TV SAT
Cod. Identificativo Nazionale (CIN)
IT022118C2M26AKLL4

Appartamento tipo 3 50 mq. al 2° piano: la cucina con angolo pranzo

Appartamento tipo 3 50 mq. al 2° piano: l'angolo pranzo nella cucina.

Appartamento "tipo 3" 50 mq al 2° piano Soggiorno con divano letto doppio e balcone

Appartamento tipo 3 50 mq. al 2°piano: la camera da letto matrimoniale

Appartamento "tipo 3" 50 mq. al 2° piano il bagno


Piantina appartamento "tipo 3" 50 mq.al 2° piano
Panorama
