Summer
Tobià de Vale Tipycal home in Canazei old center quiet zone Distance shop 100 meters distance swimmingpool/wellness area 300 meters distance cable car 100 meters
Tobià de Vale Nice home whit new apartment with all the komfort Perfekt for relax and family group
Space in front Tobia de vale
Parking space Tobia de vale
Winter
Tobià de Vale Dolavila Str. n 30 and n 52 Canazei Perfekt for winter sajon the distance for the cable car /lift is only 100 meters and camback from slopes almost under home. Beautifull in sommer for quiet zone not far from the center.
Tobià de Vale in winter
Panorama with home Tobia de Vale
Tobia de vale winter if it snows in the village it is possible to arrive with skis on your feet right to the house
Tobia de vale winter
Bilocale
I
45
1
2/4
1
Apartment services
Hairdryer on request, Balcony, Safe, Flatiron on request, Microwave, Internet in room on request with fee, Dishwasher, Washing machine, Private sun loungers, Living room with kitchenette, TV
National Identification Code (CIN)
IT022039C2K9UU6MVF
Two-room apartment kitchen area
Bedcouch 2 singles is possible double
Bedroom two-room apartment
Idromassage shower
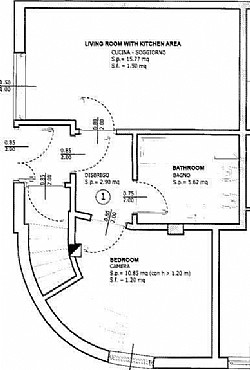
Two-room Apartment map
Trilocale
I
55
2
4/6
1
Apartment services
Hairdryer, Vacuum cleaner on request, Balcony, Safe, Flatiron on request, Microwave, Internet in room, Dishwasher, Washing machine, Living room with kitchenette
National Identification Code (CIN)
IT022039C2KKML97RW
Livingroom with kitchen area
Livingroom with bedcouch hight quality Matresses my form
Bedroom with two singles beds is possible double
Bedroom with doublebed
Badroom with shower ydromassage
Mappa of the apartment
Quadrilocale
M2
140
3
6/7
2
Apartment services
Hairdryer on request, Balcony, Flatiron on request, Microwave, Internet in room on request with fee, Dishwasher, Washing machine, Private sun loungers, Living room with kitchenette, TV, Digital TV, Satellite TV
National Identification Code (CIN)
IT022039C2ZV46M4A7
Apartment Azola da mont Fourrooms apartment 140 sqm Livingroom with kitchen area
Apartment Azola da mont Livingroom with long table for 8/10 People and kitchen area
Apartment Azola da mont 1st big Doubleroom
Apartment Azola da mont 2th big Doubleroom arround 25 sqm
Second Doubleroom vs. north vision
Azola da mont 3th Doubleroom with 2 single beds (is possible to bring near)
Azola da mont Thirth Bedroom with single beds and private bathroom (with shower)
Azola da mont Big Bathroom with bath and shower cabine with ydromassage and ironbath/sauna.
Azola da mont Big bathroom with shower kabine with ydromassage and iron-bath
Azola da mont Second Bathroom with shower
View
Panorama sud/est
Panorama sud/west



